仁義重劃區-元富信城鼎
文章快速導覽
2022/02/28
一直以來,被仁義哥用『元富信21樓豪宅案』來代稱的元富信城鼎,
是仁義重劃區備受矚目的案子.
就在農曆過年之前就正式推出囉,
不曉得您是否已經在9天的春節假期或者是228的三天連假去看過了呢?
接下來,就讓仁義哥以2個LP來跟您好好分析一下這個案子:

[元富信城鼎地點 (Location)]
元富信城鼎的位置在元信二街與元富二街的交差口,
如果你是經常使用一高的人
從基隆,汐止(汐科),南港,內湖等南下到三重交流道,
往蘆洲方向的匣道出口下來1分鐘內就可以到城鼎

前方面對著6千坪的文小預定地,目前被規劃成公園綠地.
因此有著超大的棟距.

仁義哥也在之前PO文說過,
目前公園有栽種了一片櫻花樹,
將來元富信城鼎的住戶,
每到冬天和春天交換之際,
免出門就會有一片美美的櫻花景觀在自家門前.


元富信城鼎後方二個案子,一個是成屋的大亮時代2,另一個是在3月準備公開的元利樂樺.
如果有意要參考A1和B2的人,也可以往較中高樓層選擇,一樣可以有不錯的視野.
A1會面向元利樂樺,若要越過它(49.7M),可以參考13樓以上的房子.
B2會面向大亮時代,若要超過它(33M),可以參考8樓以上的房子.
右邊的元信二街對面是大亮時代1.
左邊的空地目前還尚無建案規劃.

元富信城鼎與大亮時代2之間的棟距有約16米左右.
另外,從目前建築物地籍套繪地圖上來看,元利樂樺大樓蓋的位置會比較往仁義街和元信二街靠,
所以與元富信城鼎的棟距應該也會超過16米以上.

[元富信城鼎基本資料 (Profile)]
城鼎是元富信建設的在仁義的第二個對外銷售的案子,
之前的第一個案子,仁義哥也有介紹過,叫做元信國翠.
為什麼要叫城鼎呢?
當仁義哥踏入它的簡易接待中心,看到入門口右邊的牆上,有一面建案示意廣告圖片,就知道原因了.

注意到建築外觀,透過它的造型線條設計,
就會看到一個很明顯的『鼎』字.
這個案子也算是仁義裡的地標建築,標高有77米
僅差最高的元信國翠2.5米左右 (元信國翠是79.48米)
而且它的位置又更接近整個仁義重劃區的中央位置
用城鼎命名,覺得非常的貼切每次看到這棟建築,就覺得它非常霸氣地聳立在仁義重劃區這個城市上.
是不是有點像抄自它的FB官網寫的: 鼎天立地,獨霸城心 😅

元富信的基本資料

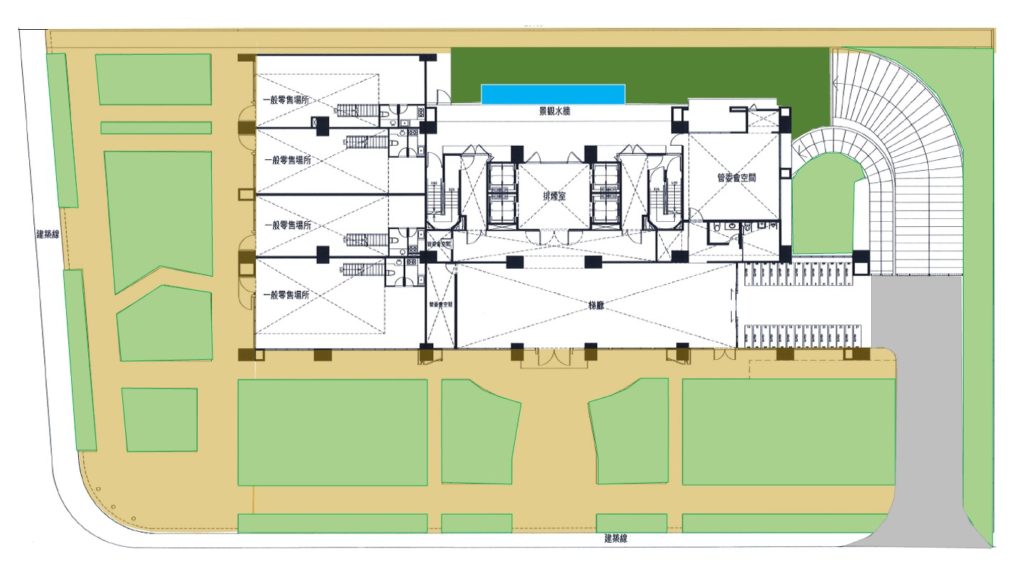
[元富信城鼎平面圖介紹 (Layout)]
元富信城鼎有著超低的建蔽率
所以從它送建照時的地藉套繪圖上就可以看到,
在其建築門廳入口前方以及店舖前方
均有較大的退縮,變成開放式的人行空間;並且有大量的植栽.


透過1樓平面圖來看,
標示綠色即為植栽處;
標示棕色則是人行空間.

接著看到1樓建築內部,
為了有豪門大器之感,進入挑高的6米大廳後,
就會看到一寬敞又舒服的沙發組坐立其中.
因為網路購物已是常態,物業櫃台後方也保留較足夠的包裹/快遞的儲藏空間.
住戶在進入梯廳待電梯之前,就會先經過信箱區;可使用一卡通開鎖收取信件.
1樓亦配置有無障礙廁所.
所有進出的各種交通工具均為同一入口,位於元富二街上.
腳踏車可以停放在1樓腳踏車停放區.
汽車與機車進入停車場有各自的車道,是較安全的設計.

2樓到9樓早已被地主戶登記,所以沒有機會買到
因此,仁義哥就跳過不介紹.

10樓以上的A3戶也是地主首選的房子,
所以仁義哥僅就其餘4個房型做介紹.
但因為元富信城鼎左右兩側剛好是鏡像相反的設計,
這裡就僅以A1和A2的格局做簡易說明.



[仁義哥看到的亮點 (Preference)]
1.全區罕見均質中大坪數建案
近年來房價不斷攀高,為求低總價,小坪數的房型越趨普遍.
仁義重劃區更是因為每個建案的基地面積都不大,所以大多案子都是以中小坪數的房型規劃為主.
城鼎是仁義截至目前為止,唯一規劃均為中大坪數的建案.

2.全區唯一,全浴室採超高防水層處理
因為現在大多建案,在浴室都會提供乾濕分離,
所以浴室裡很容易區分為乾濕二區;
一般建設公司就會在防水規劃上加強濕區的防水,而乾區防水就可以做較少的處理.
也許會常聽說防水層高度做到180公分,因為大多數人的身高及淋浴的位置,大蓋就在這個高度左右.
元富信城鼎在浴室的防水層不管是濕區或乾區全都做到2.6米的高度;讓浴室全室能有更好的防水保證.

3.配有四部電梯
這個真的很強.
若以一層為5戶來看,使用4部電梯,是很多案子不會出現的高規格配置.
而且還是使用品質很好的三菱電梯,
4部均為17人份的大電梯哦!
每部也都有到R樓和地下室.一定會讓生活方便很多.

4.強化建築結構,採用柱中柱工法,耐震一把罩
仁義哥在之前的巡田水就跟大家提示過(也1年半之前了),
因為元富信城鼎也有柱中柱的設計拉!
但與欣世代採用Alfa Safe的柱中柱還是有些差異,
不過同樣都是以強化低樓層柱子的有效工法.
城鼎在B1~2F都有柱中柱結構設計.



就像接待中心看到的大幅廣告文宣內寫的,
元富信建設很早就開始進駐扎根,
是仁義重劃區成形最重要的推手.
他們的案子已將近完成,預計今年年底就可以取得使用執照.
這個成品擺在眼前,
就等您去了解更多他的細節.
